Apartamentos de nueva construcción en Torrevieja a solo 100 m de la Playa de Los Locos

Ref.:NB-50815
Alicante (Costa Blanca) · Torrevieja
250.000€
250.000€
Request info

Apartamentos de nueva construcción en Torrevieja a solo 100 m de la Playa de Los Locos

Ref.:NB-50815
Alicante (Costa Blanca) · Torrevieja
250.000€
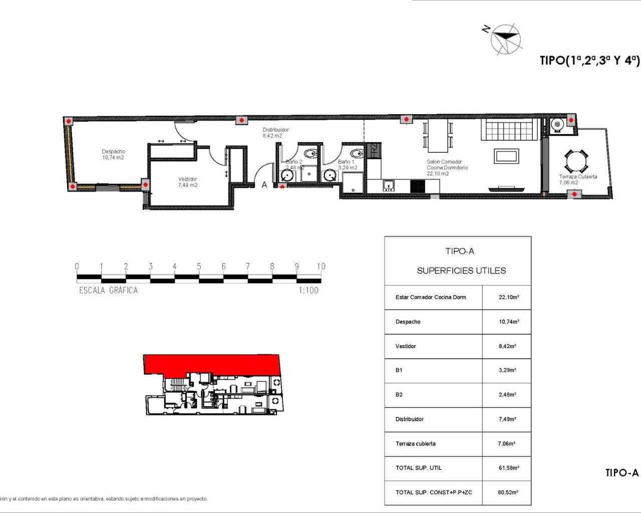
80 m2 · 2 Habitaciones · 2 Baños · Piscina
Habitaciones: 2
Baños: 2
Construidos: 80m2
Piscina:
Distancia a la playa: 100 Mts.
Elevator/Lift
Communal Pool
Near Schools
Near Bus Route
Air Conditioning: Pre-Installed
Near Commercial Center
Double Bedrooms: 2
Barbacoa
Location: Coastal
Useable Build Space: 61 Msq.
Terrace: 7 Msq.
First Line to the Sea
Space
Has Main Electric
Beach: 100 Meters
Calificación energética
Calificación energéticaB

Apartamentos de nueva construcción en Torrevieja a solo 100 m de la Playa de Los Locos Ubicación privilegiada en el corazón de Torrevieja Descubra estos apartamentos y áticos a estrenar en una de las zonas más cotizadas de Torrevieja, a solo 100 m de la Playa de Los Locos. Situado en el centro de la ciudad, este animado barrio ofrece todos los servicios esenciales a poca distancia, incluyendo supermercados, tiendas, restaurantes, cafeterías y transporte público. Torrevieja es una conocida ciudad costera de la Costa Blanca, famosa por su clima mediterráneo templado, su animado ambiente y su estilo de vida junto al mar durante todo el año. Apartamentos modernos con distribuciones espaciosas Esta exclusiva promoción nueva consta de solo 17 apartamentos y áticos entre estudios o apartamentos de 2 dormitorios, diseñados para ofrecer comodidad, funcionalidad y estilo contemporáneo. Todas las viviendas incluyen una cocina abierta conectada con el salón-comedor, equipada con electrodomésticos, lo que crea interiores luminosos y acogedores. Los dormitorios cuentan con armarios empotrados y los baños están totalmente equipados con muebles, espejos, suelo radiante y mamparas de ducha. Acabados de calidad y características de eficiencia energética Los apartamentos están construidos con materiales de alta calidad y un fuerte enfoque en la eficiencia energética. La carpintería exterior de aluminio incluye tecnología de rotura de puente térmico y doble acristalamiento para el aislamiento térmico y acústico. Las persianas motorizadas añaden comodidad y seguridad. Cada vivienda cuenta con preinstalación de aire acondicionado y calefacción por conductos, puertas de entrada reforzadas, pack de iluminación y puertas interiores lacadas en blanco. El agua caliente se produce mediante un sistema aerotérmico, lo que reduce el consumo de energía y mejora la sostenibilidad. Solárium en la azotea con piscina comunitaria Los residentes pueden disfrutar de un solárium exclusivo en la azotea con piscina comunitaria, barbacoa, sauna y zona de solarium con tumbonas, accesible por ascensor o escaleras. Esta zona privada es perfecta para relajarse, tomar el sol y disfrutar de las vistas panorámicas de la ciudad. Ofrece un refugio tranquilo sobre las animadas calles de Torrevieja y añade un valor significativo a la promoción. Estilo de vida y alrededores de Torrevieja Torrevieja es conocida por su extenso litoral, sus playas de arena y sus emblemáticas salinas. El Parque Natural de las Lagunas de La Mata y Torrevieja se encuentra a unos 5 km y ofrece rutas de senderismo y paisajes únicos. Varios campos de golf, como Villamartin Golf y Las Colinas Golf, se encuentran a entre 12 y 18 km. El puerto deportivo y el puerto de Torrevieja están a aproximadamente 2 km. El aeropuerto de Alicante está a unos 45 km y el aeropuerto internacional de Murcia a unos 65 km, ambos con excelentes conexiones europeas. Su hogar en la costa le espera No pierda esta oportunidad de adquirir un moderno apartamento de nueva construcción cerca de la playa en Torrevieja. Póngase en contacto con nosotros hoy mismo para obtener más información o concertar una visita privada.

Esta información que se proporciona aquí está sujeta a errores y no forma parte de ningún contrato. La oferta se puede cambiar o retirar sin previo aviso. Los precios no incluyen los costes de compra

Calcular hipoteca

Cambio de divisas

  • Libras: 216.025 GBP
  • Rublo Ruso: 216.025 RUB
  • Franco Suizo: 228.900 CHF
  • Yuan Chino: 1.999.725 CNY
  • Dolar: 294.025 USD
  • Corona Sueca: 2.710.500 SEK
  • Corona Noruega: 2.705.375 NOK

Detalles

80 m2 · 2 Habitaciones · 2 Baños · Piscina

Características

Habitaciones: 2
Baños: 2
Construidos: 80m2
Piscina:
Distancia a la playa: 100 Mts.
Elevator/Lift
Communal Pool
Near Schools
Near Bus Route
Air Conditioning: Pre-Installed
Near Commercial Center
Double Bedrooms: 2
Barbacoa
Location: Coastal
Useable Build Space: 61 Msq.
Terrace: 7 Msq.
First Line to the Sea
Space
Has Main Electric
Beach: 100 Meters
Calificación energética
Calificación energéticaB

Descripción

Apartamentos de nueva construcción en Torrevieja a solo 100 m de la Playa de Los Locos Ubicación privilegiada en el corazón de Torrevieja Descubra estos apartamentos y áticos a estrenar en una de las zonas más cotizadas de Torrevieja, a solo 100 m de la Playa de Los Locos. Situado en el centro de la ciudad, este animado barrio ofrece todos los servicios esenciales a poca distancia, incluyendo supermercados, tiendas, restaurantes, cafeterías y transporte público. Torrevieja es una conocida ciudad costera de la Costa Blanca, famosa por su clima mediterráneo templado, su animado ambiente y su estilo de vida junto al mar durante todo el año. Apartamentos modernos con distribuciones espaciosas Esta exclusiva promoción nueva consta de solo 17 apartamentos y áticos entre estudios o apartamentos de 2 dormitorios, diseñados para ofrecer comodidad, funcionalidad y estilo contemporáneo. Todas las viviendas incluyen una cocina abierta conectada con el salón-comedor, equipada con electrodomésticos, lo que crea interiores luminosos y acogedores. Los dormitorios cuentan con armarios empotrados y los baños están totalmente equipados con muebles, espejos, suelo radiante y mamparas de ducha. Acabados de calidad y características de eficiencia energética Los apartamentos están construidos con materiales de alta calidad y un fuerte enfoque en la eficiencia energética. La carpintería exterior de aluminio incluye tecnología de rotura de puente térmico y doble acristalamiento para el aislamiento térmico y acústico. Las persianas motorizadas añaden comodidad y seguridad. Cada vivienda cuenta con preinstalación de aire acondicionado y calefacción por conductos, puertas de entrada reforzadas, pack de iluminación y puertas interiores lacadas en blanco. El agua caliente se produce mediante un sistema aerotérmico, lo que reduce el consumo de energía y mejora la sostenibilidad. Solárium en la azotea con piscina comunitaria Los residentes pueden disfrutar de un solárium exclusivo en la azotea con piscina comunitaria, barbacoa, sauna y zona de solarium con tumbonas, accesible por ascensor o escaleras. Esta zona privada es perfecta para relajarse, tomar el sol y disfrutar de las vistas panorámicas de la ciudad. Ofrece un refugio tranquilo sobre las animadas calles de Torrevieja y añade un valor significativo a la promoción. Estilo de vida y alrededores de Torrevieja Torrevieja es conocida por su extenso litoral, sus playas de arena y sus emblemáticas salinas. El Parque Natural de las Lagunas de La Mata y Torrevieja se encuentra a unos 5 km y ofrece rutas de senderismo y paisajes únicos. Varios campos de golf, como Villamartin Golf y Las Colinas Golf, se encuentran a entre 12 y 18 km. El puerto deportivo y el puerto de Torrevieja están a aproximadamente 2 km. El aeropuerto de Alicante está a unos 45 km y el aeropuerto internacional de Murcia a unos 65 km, ambos con excelentes conexiones europeas. Su hogar en la costa le espera No pierda esta oportunidad de adquirir un moderno apartamento de nueva construcción cerca de la playa en Torrevieja. Póngase en contacto con nosotros hoy mismo para obtener más información o concertar una visita privada.

Localización

Economía

Esta información que se proporciona aquí está sujeta a errores y no forma parte de ningún contrato. La oferta se puede cambiar o retirar sin previo aviso. Los precios no incluyen los costes de compra

Calcular hipoteca

Cambio de divisas

  • Libras: 216.025 GBP
  • Rublo Ruso: 216.025 RUB
  • Franco Suizo: 228.900 CHF
  • Yuan Chino: 1.999.725 CNY
  • Dolar: 294.025 USD
  • Corona Sueca: 2.710.500 SEK
  • Corona Noruega: 2.705.375 NOK

Solicitar información

Responsable del tratamiento: , Finalidad del tratamiento: Gestión y control de los servicios ofrecidos a través de la página Web de Servicios inmobiliarios, Envío de información a traves de newsletter y otros, Legitimación: Por consentimiento, Destinatarios: No se cederan los datos, salvo para elaborar contabilidad, Derechos de las personas interesadas: Acceder, rectificar y suprimir los datos, solicitar la portabilidad de los mismos, oponerse altratamiento y solicitar la limitación de éste, Procedencia de los datos: El Propio interesado, Información Adicional: Puede consultarse la información adicional y detallada sobre protección de datos Aquí.

Propiedades similares

Contactar Contactar WhatsApp WhatsApp
WhatsApp Chatea con nosotros ahora