Modernos apartamentos de un dormitorio en Mijas Costa

Ref.:NB-75474
Málaga (Costa del Sol) · Mijas
368.900€
368.900€
Request info

Modernos apartamentos de un dormitorio en Mijas Costa

Ref.:NB-75474
Málaga (Costa del Sol) · Mijas
368.900€
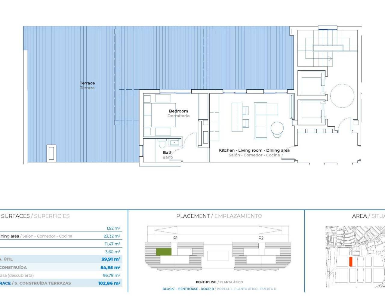
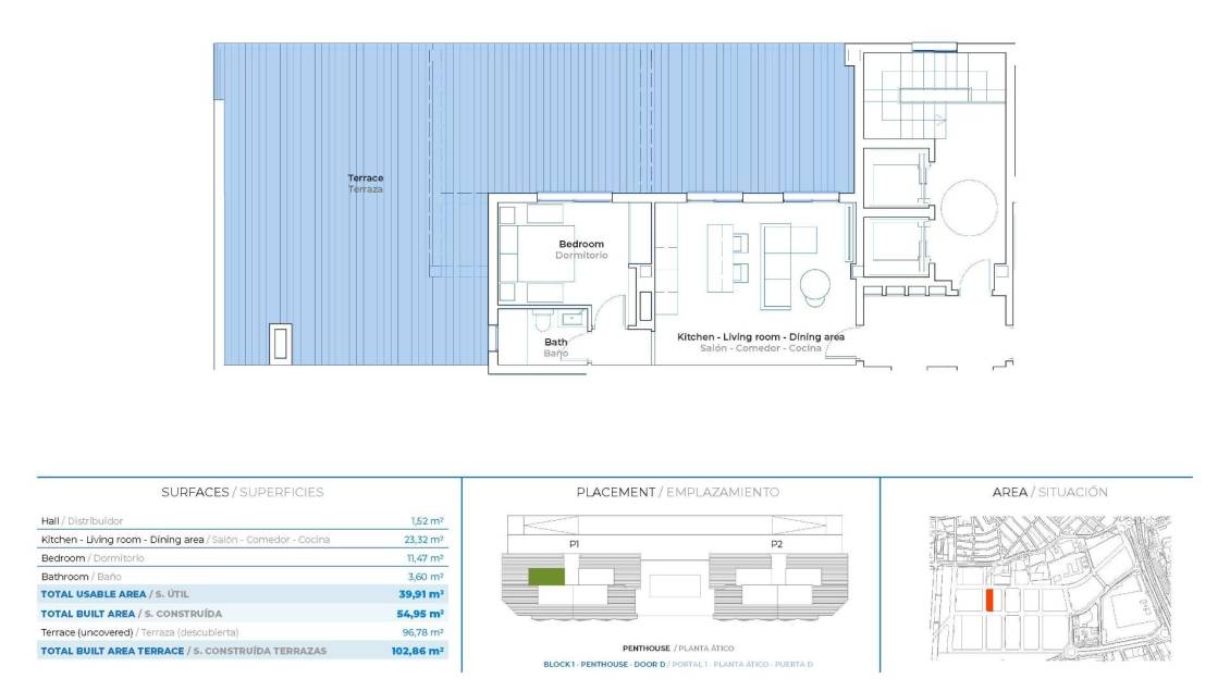
54 m2 · 1 Habitaciones · 1 Baños · Piscina
Habitaciones: 1
Baños: 1
Construidos: 54m2
Piscina:
Distancia a la playa: 1800 Mts.
Elevator/Lift
Communal Pool
Gated
Number of Parking Spaces: 1
Near Schools
Near Bus Route
Location: Coastal, Urbanisation
Double Bedrooms: 1
Near Commercial Center
Gym
Air Conditioning: Yes
Barbacoa
Parking - Space
Terrace: 96 Msq.
Beach: 1800 Meters
Useable Build Space: 39 Msq.
Calificación energética
Calificación energéticaB

Modernos apartamentos de un dormitorio en Mijas Costa: comodidad, estilo y excelente relación calidad-precio Vida contemporánea en Las Lagunas, Mijas Costa Descubra una nueva y emocionante promoción de 116 elegantes apartamentos de un dormitorio situados en Las Lagunas, Mijas Costa, una de las zonas más dinámicas y prometedoras de la Costa del Sol. Esta ubicación ofrece el equilibrio perfecto entre la tranquilidad residencial y las comodidades urbanas, con todos los servicios esenciales a solo unos minutos. Los residentes se benefician de la proximidad a centros comerciales, colegios, centros de salud, instalaciones deportivas y una amplia selección de restaurantes. Diseño inteligente y espacios funcionales Diseñados pensando en la vida contemporánea, estos apartamentos ofrecen distribuciones diáfanas que maximizan tanto el espacio como el confort. Los luminosos interiores cuentan con materiales naturales y tonos cálidos, creando un ambiente acogedor y agradable. El salón, la cocina y el dormitorio se fusionan en un diseño armonioso y fluido, con la terraza como prolongación natural del espacio interior, ideal para disfrutar de la luz mediterránea y de la vida al aire libre durante todo el año. Elija entre plantas bajas o intermedias con terrazas, o áticos con amplias terrazas privadas perfectas para tomar el sol o recibir invitados. Cada apartamento incluye: Cocina totalmente equipada con electrodomésticos Sistema de aire acondicionado por conductos Una plaza de aparcamiento privada incluida Servicios premium para un estilo de vida equilibrado La promoción se construye en torno a una piscina comunitaria central con un bar chill-out de estilo tropical, que ofrece el entorno perfecto para relajarse y socializar. También hay una zona de barbacoa para reuniones con familiares y amigos. Los residentes también disfrutarán de acceso a un gimnasio totalmente equipado, que les permitirá llevar un estilo de vida saludable y activo sin salir de casa. Para profesionales o estudiantes, un espacio de coworking ofrece un entorno moderno y práctico para el teletrabajo o el estudio, reforzando el compromiso con un estilo de vida en el que conviven el confort, el ocio y la productividad. Distancias clave: Playas de Mijas Costa: 2 km Centro comercial Miramar: 1 km Centro de Fuengirola: 4 km Club de Golf Chaparral: 5 km Aeropuerto de Málaga-Costa del Sol: 25 km Marbella: 25 km Invierta en el corazón de la Costa del Sol Este proyecto residencial representa una oportunidad única para compradores primerizos, inversores o jubilados que buscan una comunidad bien comunicada y dinámica, con excelentes servicios y una gran relación calidad-precio. Ya sea como vivienda habitual o como inversión para alquilar, estos modernos apartamentos en Mijas Costa están diseñados para adaptarse al estilo de vida actual. Póngase en contacto con nosotros hoy mismo y asegúrese su lugar en una de las zonas más prometedoras de la Costa del Sol. 505

Esta información que se proporciona aquí está sujeta a errores y no forma parte de ningún contrato. La oferta se puede cambiar o retirar sin previo aviso. Los precios no incluyen los costes de compra

Calcular hipoteca

Cambio de divisas

  • Libras: 321.563 GBP
  • Rublo Ruso: 321.563 RUB
  • Franco Suizo: 340.532 CHF
  • Yuan Chino: 2.969.018 CNY
  • Dolar: 435.191 USD
  • Corona Sueca: 3.985.227 SEK
  • Corona Noruega: 4.064.171 NOK

Detalles

54 m2 · 1 Habitaciones · 1 Baños · Piscina

Características

Habitaciones: 1
Baños: 1
Construidos: 54m2
Piscina:
Distancia a la playa: 1800 Mts.
Elevator/Lift
Communal Pool
Gated
Number of Parking Spaces: 1
Near Schools
Near Bus Route
Location: Coastal, Urbanisation
Double Bedrooms: 1
Near Commercial Center
Gym
Air Conditioning: Yes
Barbacoa
Parking - Space
Terrace: 96 Msq.
Beach: 1800 Meters
Useable Build Space: 39 Msq.
Calificación energética
Calificación energéticaB

Descripción

Modernos apartamentos de un dormitorio en Mijas Costa: comodidad, estilo y excelente relación calidad-precio Vida contemporánea en Las Lagunas, Mijas Costa Descubra una nueva y emocionante promoción de 116 elegantes apartamentos de un dormitorio situados en Las Lagunas, Mijas Costa, una de las zonas más dinámicas y prometedoras de la Costa del Sol. Esta ubicación ofrece el equilibrio perfecto entre la tranquilidad residencial y las comodidades urbanas, con todos los servicios esenciales a solo unos minutos. Los residentes se benefician de la proximidad a centros comerciales, colegios, centros de salud, instalaciones deportivas y una amplia selección de restaurantes. Diseño inteligente y espacios funcionales Diseñados pensando en la vida contemporánea, estos apartamentos ofrecen distribuciones diáfanas que maximizan tanto el espacio como el confort. Los luminosos interiores cuentan con materiales naturales y tonos cálidos, creando un ambiente acogedor y agradable. El salón, la cocina y el dormitorio se fusionan en un diseño armonioso y fluido, con la terraza como prolongación natural del espacio interior, ideal para disfrutar de la luz mediterránea y de la vida al aire libre durante todo el año. Elija entre plantas bajas o intermedias con terrazas, o áticos con amplias terrazas privadas perfectas para tomar el sol o recibir invitados. Cada apartamento incluye: Cocina totalmente equipada con electrodomésticos Sistema de aire acondicionado por conductos Una plaza de aparcamiento privada incluida Servicios premium para un estilo de vida equilibrado La promoción se construye en torno a una piscina comunitaria central con un bar chill-out de estilo tropical, que ofrece el entorno perfecto para relajarse y socializar. También hay una zona de barbacoa para reuniones con familiares y amigos. Los residentes también disfrutarán de acceso a un gimnasio totalmente equipado, que les permitirá llevar un estilo de vida saludable y activo sin salir de casa. Para profesionales o estudiantes, un espacio de coworking ofrece un entorno moderno y práctico para el teletrabajo o el estudio, reforzando el compromiso con un estilo de vida en el que conviven el confort, el ocio y la productividad. Distancias clave: Playas de Mijas Costa: 2 km Centro comercial Miramar: 1 km Centro de Fuengirola: 4 km Club de Golf Chaparral: 5 km Aeropuerto de Málaga-Costa del Sol: 25 km Marbella: 25 km Invierta en el corazón de la Costa del Sol Este proyecto residencial representa una oportunidad única para compradores primerizos, inversores o jubilados que buscan una comunidad bien comunicada y dinámica, con excelentes servicios y una gran relación calidad-precio. Ya sea como vivienda habitual o como inversión para alquilar, estos modernos apartamentos en Mijas Costa están diseñados para adaptarse al estilo de vida actual. Póngase en contacto con nosotros hoy mismo y asegúrese su lugar en una de las zonas más prometedoras de la Costa del Sol. 505

Localización

Economía

Esta información que se proporciona aquí está sujeta a errores y no forma parte de ningún contrato. La oferta se puede cambiar o retirar sin previo aviso. Los precios no incluyen los costes de compra

Calcular hipoteca

Cambio de divisas

  • Libras: 321.563 GBP
  • Rublo Ruso: 321.563 RUB
  • Franco Suizo: 340.532 CHF
  • Yuan Chino: 2.969.018 CNY
  • Dolar: 435.191 USD
  • Corona Sueca: 3.985.227 SEK
  • Corona Noruega: 4.064.171 NOK

Solicitar información

Responsable del tratamiento: , Finalidad del tratamiento: Gestión y control de los servicios ofrecidos a través de la página Web de Servicios inmobiliarios, Envío de información a traves de newsletter y otros, Legitimación: Por consentimiento, Destinatarios: No se cederan los datos, salvo para elaborar contabilidad, Derechos de las personas interesadas: Acceder, rectificar y suprimir los datos, solicitar la portabilidad de los mismos, oponerse altratamiento y solicitar la limitación de éste, Procedencia de los datos: El Propio interesado, Información Adicional: Puede consultarse la información adicional y detallada sobre protección de datos Aquí.

Propiedades similares

Contactar Contactar WhatsApp WhatsApp
WhatsApp Chatea con nosotros ahora