Contemporary Villa with Panoramic Sea Views in La Fustera, Benissa Costa

Ref.:NB-93530
Alicante (Costa Blanca) · Benissa
2.850.000€
2.850.000€
Request info

Contemporary Villa with Panoramic Sea Views in La Fustera, Benissa Costa

Ref.:NB-93530
Alicante (Costa Blanca) · Benissa
2.850.000€
342 m2 · 800 m2 land · 4 Bedrooms · 3 Bathrooms · Pool
Bedrooms: 4
Bathrooms: 3
Built: 342m2
Plot: 800m2
Pool: Yes
Distance to beach: 150 Mts.
Solarium: Yes
Gated
Near Schools
Near Bus Route
Location: Coastal, Urbanisation
Garden
Number of Parking Spaces: 2
Near Commercial Center
Gym
Double Bedrooms: 4
Private Pool
Views: Sea
Under-Build / Basement
Near Trees
Beach: 150 Meters
Useable Build Space: 290 Msq.
Space
Terrace: 157 Msq.
Storage / Trastero
Toilet: 1
Energy Rating
Energy RatingB

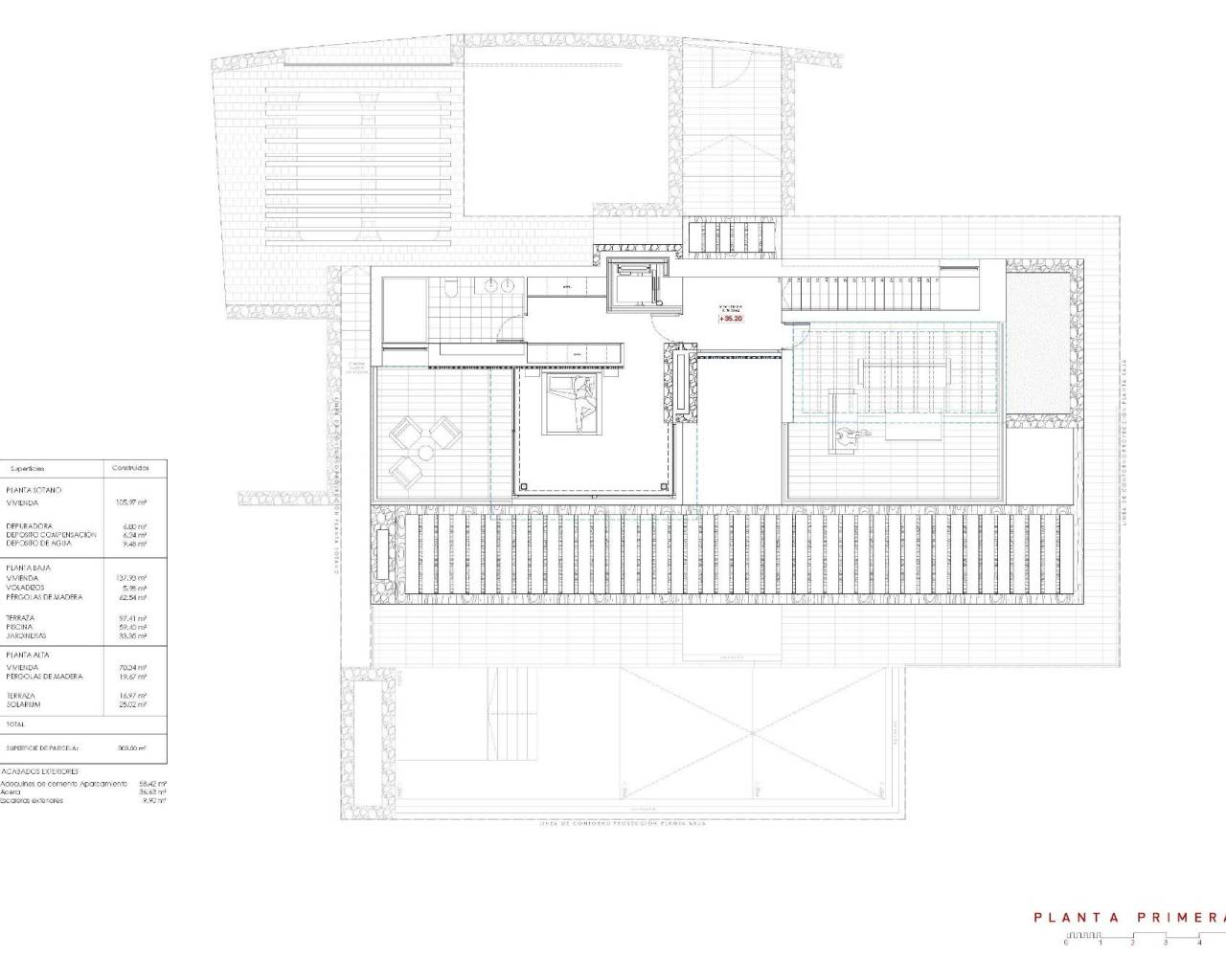
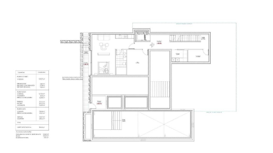
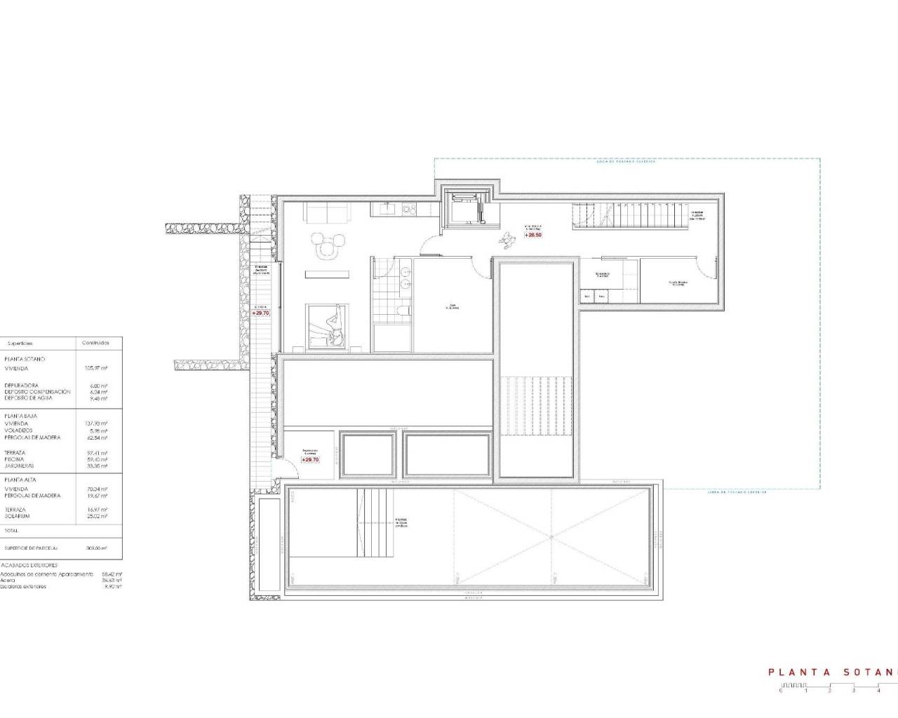
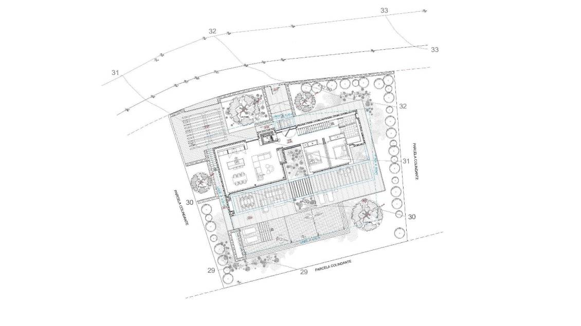
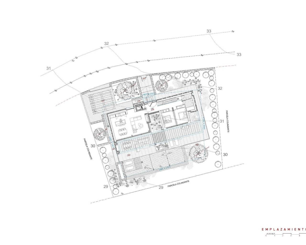
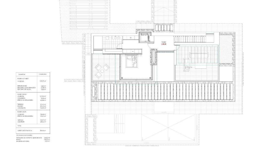
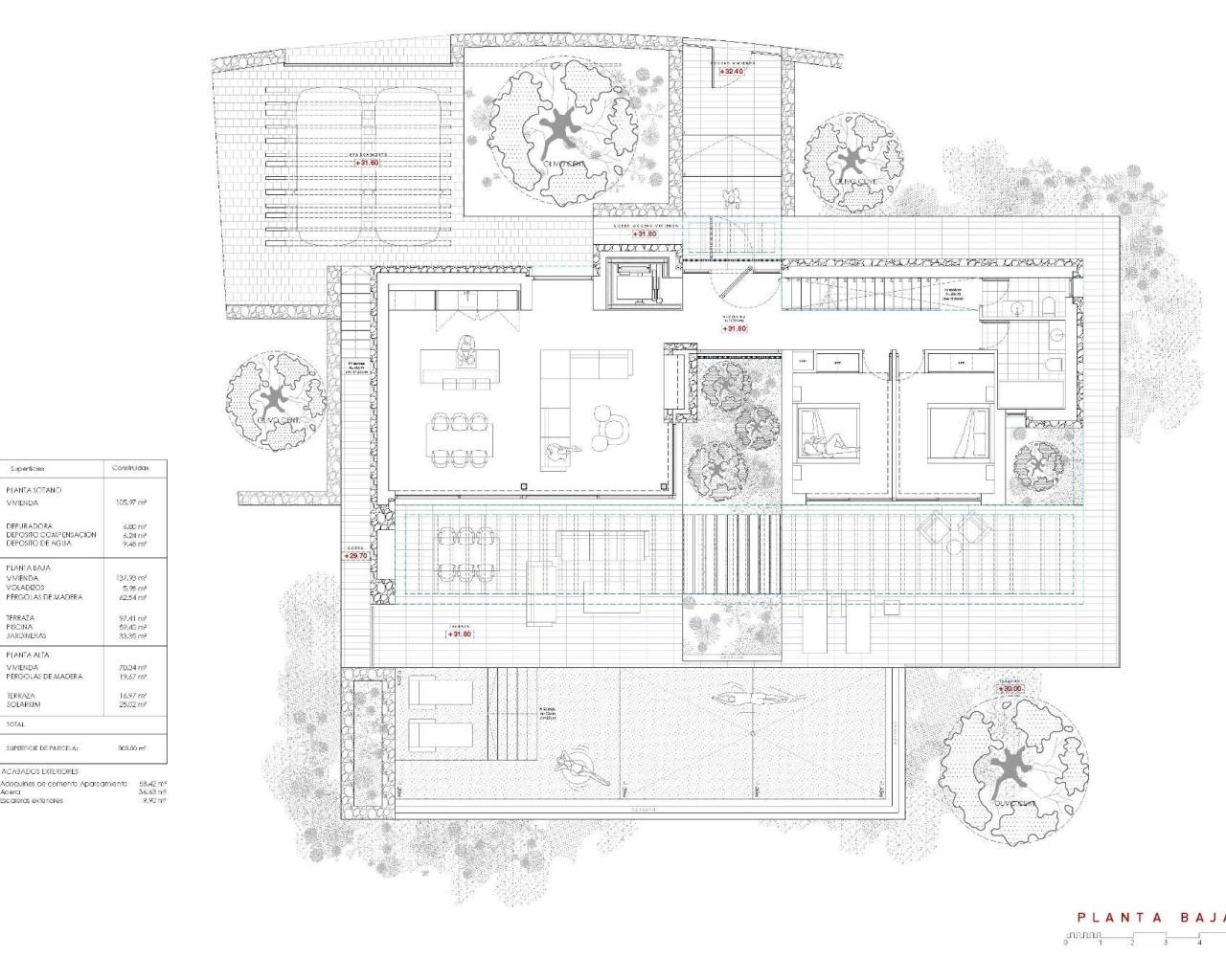
Contemporary Villa with Panoramic Sea Views in La Fustera, Benissa Costa This exclusive new-build villa, designed by a renowned architect and developed by a local developer with more than 20 years experience, sits on an 800 m² plot just a few steps from La Fustera Beach. Blending Mediterranean warmth with contemporary elegance, the architecture combines natural stone, wood, and soft neutral tones, integrating seamlessly with the coastal landscape. With a total built area of 716 m² distributed over three levels - basement, ground floor, and first floor - the villa offers a perfect balance between functionality, design, and comfort. Basement Level The lower floor of 105.97 m² is designed for both practicality and leisure. It includes a fully equipped gym, laundry room, and technical areas, with the option to adapt additional spaces as a wine cellar, cinema, or multipurpose room. This level also houses the pool’s filtration system and water tanks, ensuring efficient management of all technical installations. Ground Floor The main level, with 137.93 m², unfolds in a bright open-plan layout that captures the essence of Mediterranean living. The spacious living room, dining area, and kitchen open through large floorto-ceiling windows onto the main terrace and infinity pool, framing incredible panoramic sea views that define the character of this home. Two double bedrooms, a full bathroom, and a guest toilet complete this floor, providing comfort and functionality. Outside, a wooden pergola shades the outdoor lounge and dining areas, surrounded by lush gardens, sun terraces, and a 59.40 m² infinity pool that visually merges with the sea. First Floor The upper level, with 70.19 m², is reserved for the master suite - a private retreat featuring a walk-in closet, en-suite bathroom, and a large private terrace with breathtaking views of the Mediterranean Sea. A second bedroom or office space completes this floor, which also provides access to a 25.02 m² solarium, ideal for relaxing under the sun and enjoying the serenity of the surroundings. Exterior and Location Located on a quiet residential street surrounded by modern villas, this property enjoys an exceptional position just a 3-minute walk from La Fustera Beach (150m), the Mandala Beach Bar & Restaurant, and essential amenities such as supermarkets and local services. Designed with an emphasis on light, space, and seamless indoor-outdoor living, this villa embodies the modern Mediterranean lifestyle - elegant, relaxed, and in perfect harmony with its spectacular panoramic sea views. Secure your dream villa in La Fustera, Benissa Costa, and embrace the ultimate Mediterranean lifestyle with breathtaking sea views and unmatched comfort.

This info given here is subject to errors and do not form part of any contract. The offer can be changed or withdrawn without notice. Prices do not include purchase costs.

Calculate mortgages

Currency exchange

  • Pounds: 2.484.288 GBP
  • Russian ruble: 2.484.288 RUB
  • Swiss franc: 2.630.835 CHF
  • Chinese yuan: 22.937.655 CNY
  • Dollar: 3.362.145 USD
  • Swedish krona: 30.788.550 SEK
  • The Norwegian crown: 31.398.450 NOK

Details

342 m2 · 800 m2 land · 4 Bedrooms · 3 Bathrooms · Pool

Characteristics

Bedrooms: 4
Bathrooms: 3
Built: 342m2
Plot: 800m2
Pool: Yes
Distance to beach: 150 Mts.
Solarium: Yes
Gated
Near Schools
Near Bus Route
Location: Coastal, Urbanisation
Garden
Number of Parking Spaces: 2
Near Commercial Center
Gym
Double Bedrooms: 4
Private Pool
Views: Sea
Under-Build / Basement
Near Trees
Beach: 150 Meters
Useable Build Space: 290 Msq.
Space
Terrace: 157 Msq.
Storage / Trastero
Toilet: 1
Energy Rating
Energy RatingB

Description

Contemporary Villa with Panoramic Sea Views in La Fustera, Benissa Costa This exclusive new-build villa, designed by a renowned architect and developed by a local developer with more than 20 years experience, sits on an 800 m² plot just a few steps from La Fustera Beach. Blending Mediterranean warmth with contemporary elegance, the architecture combines natural stone, wood, and soft neutral tones, integrating seamlessly with the coastal landscape. With a total built area of 716 m² distributed over three levels - basement, ground floor, and first floor - the villa offers a perfect balance between functionality, design, and comfort. Basement Level The lower floor of 105.97 m² is designed for both practicality and leisure. It includes a fully equipped gym, laundry room, and technical areas, with the option to adapt additional spaces as a wine cellar, cinema, or multipurpose room. This level also houses the pool’s filtration system and water tanks, ensuring efficient management of all technical installations. Ground Floor The main level, with 137.93 m², unfolds in a bright open-plan layout that captures the essence of Mediterranean living. The spacious living room, dining area, and kitchen open through large floorto-ceiling windows onto the main terrace and infinity pool, framing incredible panoramic sea views that define the character of this home. Two double bedrooms, a full bathroom, and a guest toilet complete this floor, providing comfort and functionality. Outside, a wooden pergola shades the outdoor lounge and dining areas, surrounded by lush gardens, sun terraces, and a 59.40 m² infinity pool that visually merges with the sea. First Floor The upper level, with 70.19 m², is reserved for the master suite - a private retreat featuring a walk-in closet, en-suite bathroom, and a large private terrace with breathtaking views of the Mediterranean Sea. A second bedroom or office space completes this floor, which also provides access to a 25.02 m² solarium, ideal for relaxing under the sun and enjoying the serenity of the surroundings. Exterior and Location Located on a quiet residential street surrounded by modern villas, this property enjoys an exceptional position just a 3-minute walk from La Fustera Beach (150m), the Mandala Beach Bar & Restaurant, and essential amenities such as supermarkets and local services. Designed with an emphasis on light, space, and seamless indoor-outdoor living, this villa embodies the modern Mediterranean lifestyle - elegant, relaxed, and in perfect harmony with its spectacular panoramic sea views. Secure your dream villa in La Fustera, Benissa Costa, and embrace the ultimate Mediterranean lifestyle with breathtaking sea views and unmatched comfort.

Location

Economy

This info given here is subject to errors and do not form part of any contract. The offer can be changed or withdrawn without notice. Prices do not include purchase costs.

Calculate mortgages

Currency exchange

  • Pounds: 2.484.288 GBP
  • Russian ruble: 2.484.288 RUB
  • Swiss franc: 2.630.835 CHF
  • Chinese yuan: 22.937.655 CNY
  • Dollar: 3.362.145 USD
  • Swedish krona: 30.788.550 SEK
  • The Norwegian crown: 31.398.450 NOK

Ask for information

Responsable del tratamiento: , Finalidad del tratamiento: Gestión y control de los servicios ofrecidos a través de la página Web de Servicios inmobiliarios, Envío de información a traves de newsletter y otros, Legitimación: Por consentimiento, Destinatarios: No se cederan los datos, salvo para elaborar contabilidad, Derechos de las personas interesadas: Acceder, rectificar y suprimir los datos, solicitar la portabilidad de los mismos, oponerse altratamiento y solicitar la limitación de éste, Procedencia de los datos: El Propio interesado, Información Adicional: Puede consultarse la información adicional y detallada sobre protección de datos Aquí.

Similar Properties

Contact Contact WhatsApp WhatsApp
WhatsApp Chat with us now