Exclusive New Build Residences in Pilar de la Horadada, Costa Blanca

Ref.:NB-73498
Alicante (Costa Blanca) · Pilar de La Horadada
389.900€
389.900€
Request info

Exclusive New Build Residences in Pilar de la Horadada, Costa Blanca

Ref.:NB-73498
Alicante (Costa Blanca) · Pilar de La Horadada
389.900€
90 m2 · 3 Bedrooms · 2 Bathrooms · Pool
Bedrooms: 3
Bathrooms: 2
Built: 90m2
Pool: Yes
Distance to beach: 3500 Mts.
Solarium: Yes
Communal Pool
Gated
Number of Parking Spaces: 1
Near Schools
Near Bus Route
Location: Coastal, Urbanisation
Near Commercial Center
Near Golf / Golf Resort Property
Double Bedrooms: 3
Beach: 3500 Meters
Under-Build / Basement
Useable Build Space: 80 Msq.
Terrace: 101 Msq.
Space
Storage / Trastero
Energy Rating
Energy RatingB

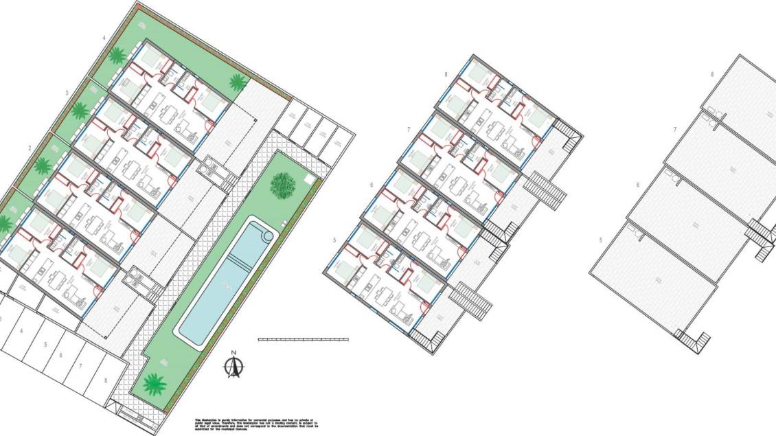
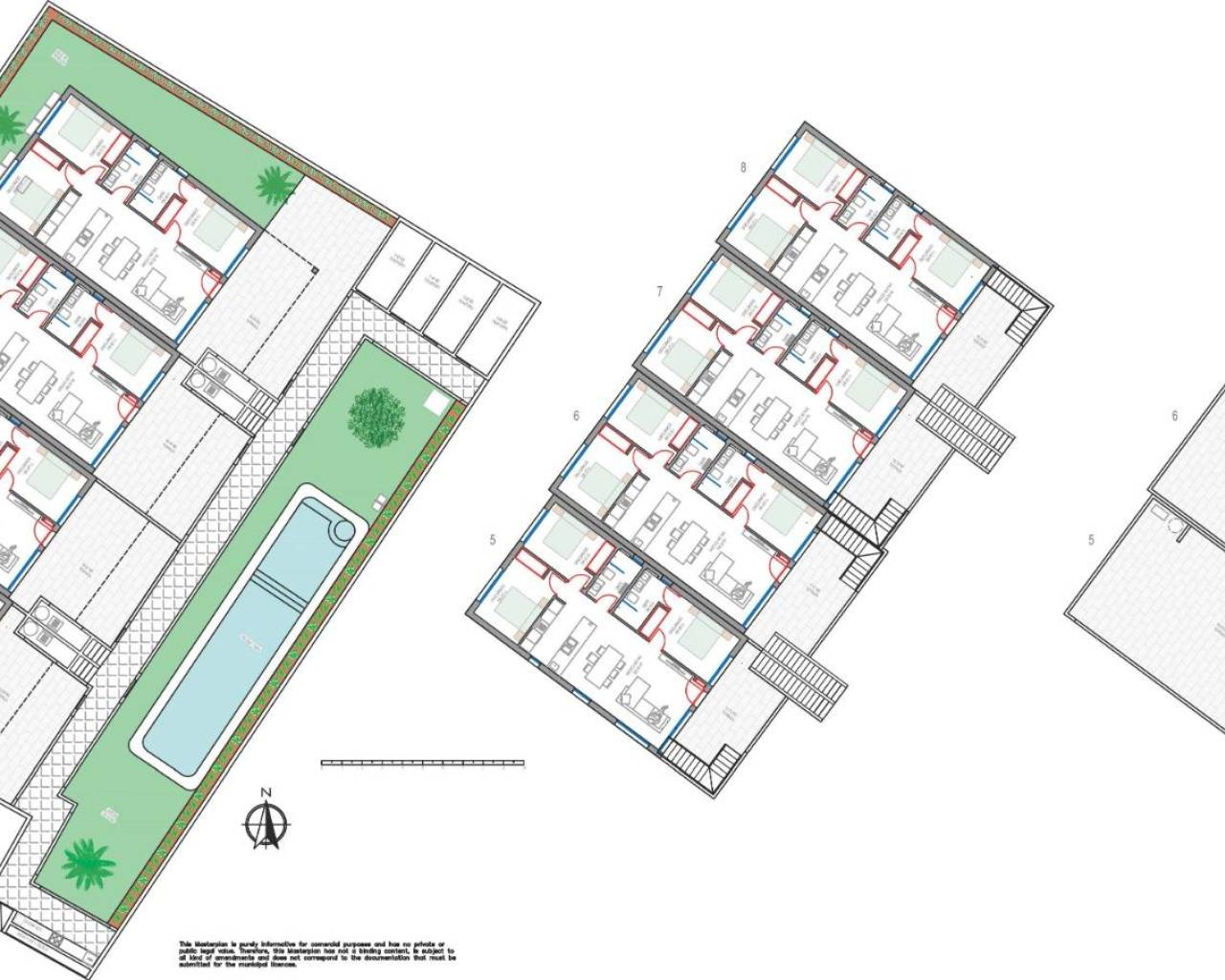
Exclusive New Build Residences in Pilar de la Horadada, Costa Blanca Modern Mediterranean Living Near the Beach Discover this exclusive new development of just 8 contemporary homes in Pilar de la Horadada, located within walking distance to the town center and only 3.5 km from the beautiful beaches of Torre de la Horadada and Mil Palmeras. This charming coastal town, situated in the southernmost part of the Costa Blanca, is known for its relaxed atmosphere, traditional Spanish charm, and excellent amenities. Residents enjoy a wide range of services including supermarkets, restaurants, shops, and leisure areas, all just a few minutes away. Elegant Homes Designed for Comfort and Style The development offers a selection of ground-floor apartments with front terraces and private gardens, or top-floor apartments featuring spacious terraces and private solariums. Each home includes 3 bedrooms and 2 bathrooms, one of them ensuite, designed with modern lines and high-quality finishes to ensure maximum comfort. The residential complex features a communal swimming pool surrounded by landscaped gardens, creating an inviting and peaceful environment for relaxation and leisure. Every property also includes a private parking space and a storage room. High-Quality Finishes and Premium Features These new build homes have been constructed with top-quality materials and attention to detail. Key specifications include: Aluminum exterior carpentry in anthracite grey with thermal break (CORTIZO brand) Quadruple glazing with solar protection Electric aluminum shutters in bedrooms Suspended toilets and walk-in showers with integrated flooring Bathroom furniture with LED backlit mirrors and electric towel rails Fully fitted kitchen equipped with Miele appliances LED interior and exterior lighting throughout the home Complete air conditioning installation via ducts (Fujitsu system) Perfect Location on the Costa Blanca Pilar de la Horadada is ideally situated for both permanent living and holidays. The town combines the best of traditional Spanish life with modern infrastructure and proximity to the sea. Main distances: Beaches of Torre de la Horadada and Mil Palmeras: 3.5 km Lo Romero Golf Course: 6 km Murcia-Corvera Airport: 40 km Alicante Airport: 55 km Marina of San Pedro del Pinatar: 10 km Your New Home in the Sun Awaits Enjoy the perfect combination of design, comfort, and Mediterranean lifestyle in these new build homes in Pilar de la Horadada. Whether you are looking for a holiday retreat or a year-round residence, this exclusive project offers the ideal balance between quality, location, and modern living. Contact us today for more information or to arrange a visit.

This info given here is subject to errors and do not form part of any contract. The offer can be changed or withdrawn without notice. Prices do not include purchase costs.

Calculate mortgages

Currency exchange

  • Pounds: 339.868 GBP
  • Russian ruble: 339.868 RUB
  • Swiss franc: 359.917 CHF
  • Chinese yuan: 3.138.032 CNY
  • Dollar: 459.965 USD
  • Swedish krona: 4.212.090 SEK
  • The Norwegian crown: 4.295.528 NOK

Details

90 m2 · 3 Bedrooms · 2 Bathrooms · Pool

Characteristics

Bedrooms: 3
Bathrooms: 2
Built: 90m2
Pool: Yes
Distance to beach: 3500 Mts.
Solarium: Yes
Communal Pool
Gated
Number of Parking Spaces: 1
Near Schools
Near Bus Route
Location: Coastal, Urbanisation
Near Commercial Center
Near Golf / Golf Resort Property
Double Bedrooms: 3
Beach: 3500 Meters
Under-Build / Basement
Useable Build Space: 80 Msq.
Terrace: 101 Msq.
Space
Storage / Trastero
Energy Rating
Energy RatingB

Description

Exclusive New Build Residences in Pilar de la Horadada, Costa Blanca Modern Mediterranean Living Near the Beach Discover this exclusive new development of just 8 contemporary homes in Pilar de la Horadada, located within walking distance to the town center and only 3.5 km from the beautiful beaches of Torre de la Horadada and Mil Palmeras. This charming coastal town, situated in the southernmost part of the Costa Blanca, is known for its relaxed atmosphere, traditional Spanish charm, and excellent amenities. Residents enjoy a wide range of services including supermarkets, restaurants, shops, and leisure areas, all just a few minutes away. Elegant Homes Designed for Comfort and Style The development offers a selection of ground-floor apartments with front terraces and private gardens, or top-floor apartments featuring spacious terraces and private solariums. Each home includes 3 bedrooms and 2 bathrooms, one of them ensuite, designed with modern lines and high-quality finishes to ensure maximum comfort. The residential complex features a communal swimming pool surrounded by landscaped gardens, creating an inviting and peaceful environment for relaxation and leisure. Every property also includes a private parking space and a storage room. High-Quality Finishes and Premium Features These new build homes have been constructed with top-quality materials and attention to detail. Key specifications include: Aluminum exterior carpentry in anthracite grey with thermal break (CORTIZO brand) Quadruple glazing with solar protection Electric aluminum shutters in bedrooms Suspended toilets and walk-in showers with integrated flooring Bathroom furniture with LED backlit mirrors and electric towel rails Fully fitted kitchen equipped with Miele appliances LED interior and exterior lighting throughout the home Complete air conditioning installation via ducts (Fujitsu system) Perfect Location on the Costa Blanca Pilar de la Horadada is ideally situated for both permanent living and holidays. The town combines the best of traditional Spanish life with modern infrastructure and proximity to the sea. Main distances: Beaches of Torre de la Horadada and Mil Palmeras: 3.5 km Lo Romero Golf Course: 6 km Murcia-Corvera Airport: 40 km Alicante Airport: 55 km Marina of San Pedro del Pinatar: 10 km Your New Home in the Sun Awaits Enjoy the perfect combination of design, comfort, and Mediterranean lifestyle in these new build homes in Pilar de la Horadada. Whether you are looking for a holiday retreat or a year-round residence, this exclusive project offers the ideal balance between quality, location, and modern living. Contact us today for more information or to arrange a visit.

Location

Economy

This info given here is subject to errors and do not form part of any contract. The offer can be changed or withdrawn without notice. Prices do not include purchase costs.

Calculate mortgages

Currency exchange

  • Pounds: 339.868 GBP
  • Russian ruble: 339.868 RUB
  • Swiss franc: 359.917 CHF
  • Chinese yuan: 3.138.032 CNY
  • Dollar: 459.965 USD
  • Swedish krona: 4.212.090 SEK
  • The Norwegian crown: 4.295.528 NOK

Ask for information

Responsable del tratamiento: , Finalidad del tratamiento: Gestión y control de los servicios ofrecidos a través de la página Web de Servicios inmobiliarios, Envío de información a traves de newsletter y otros, Legitimación: Por consentimiento, Destinatarios: No se cederan los datos, salvo para elaborar contabilidad, Derechos de las personas interesadas: Acceder, rectificar y suprimir los datos, solicitar la portabilidad de los mismos, oponerse altratamiento y solicitar la limitación de éste, Procedencia de los datos: El Propio interesado, Información Adicional: Puede consultarse la información adicional y detallada sobre protección de datos Aquí.

Similar Properties

Contact Contact WhatsApp WhatsApp
WhatsApp Chat with us now