New Build Homes in Almuñécar, Costa Tropical – Just 300 Meters from the Beach

Ref.:NB-83338
Granada · Almuñecar
378.000€
378.000€
Request info

New Build Homes in Almuñécar, Costa Tropical – Just 300 Meters from the Beach

Ref.:NB-83338
Granada · Almuñecar
378.000€
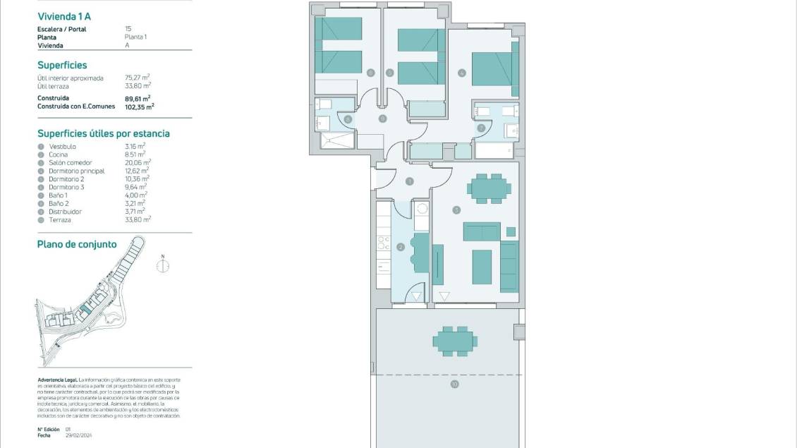
89 m2 · 3 Bedrooms · 2 Bathrooms · Pool
Bedrooms: 3
Bathrooms: 2
Built: 89m2
Pool: Yes
Distance to beach: 300 Mts.
Number of Parking Spaces: 1
Near Schools
Near Bus Route
Location: Coastal, Urbanisation
Garden
Near Commercial Center
Double Bedrooms: 3
Under-Build / Basement
Useable Build Space: 75 Msq.
Beach: 300 Meters
Terrace: 33 Msq.
Space - Double Garage
Storage / Trastero
Elevator/Lift
Communal Pool
Gated
Energy Rating
Energy RatingC

New Build Homes in Almuñécar, Costa Tropical – Just 300 Meters from the Beach Discover your new home by the sea in one of the most desirable areas of the Costa Tropical. This exclusive new development in Almuñécar offers modern living just 300 meters from the beach, with excellent amenities and a privileged coastal setting in the Velilla-Taramay area. A Variety of Homes to Suit Your Lifestyle The development consists of 54 homes with 2 and 3 bedrooms, each designed for comfort and functionality. Choose from a range of layouts, including: Ground floor apartments with spacious terraces Bright mid-floor apartments Stunning penthouses with large open-air terraces Charming terraced houses for family living All homes include private terraces, underground parking, and a storage room. Many units also offer partial or full sea views, allowing you to enjoy the beauty of the Mediterranean from your own home. Premium Features and Community Spaces Every property includes a fully furnished kitchen with appliances and ducted air conditioning already installed. The residential complex offers excellent communal areas, including: A large swimming pool Landscaped gardens Solarium area perfect for sunny days These amenities create the ideal environment to relax, entertain, or spend time with the family. Prime Location in Velilla-Taramay, Almuñécar Located in the vibrant coastal neighborhood of Velilla-Taramay, residents enjoy proximity to essential services including health centers, schools, supermarkets, sports facilities, parks, viewpoints, and a wide variety of restaurants known for their fresh seafood and Mediterranean cuisine. Distances to nearby points of interest: Beach – 300 meters Nerja – 25 km Granada Airport – 85 km Málaga Airport – 90 km Sierra Nevada Ski Resort – 110 km Marina del Este Port – 8 km Los Moriscos Golf Club – 20 km Live by the Sea All Year Round With direct pedestrian access to the beach and opportunities for activities such as sailing, paddle surfing, snorkeling, and diving, this development is perfect for those who love the sea and the outdoors. Its excellent road connections via the N-340 and the A-7 make it easy to reach any destination in Andalusia. Don't miss the opportunity to own a brand-new home on the Costa Tropical. Contact us today for more information or to schedule a visit. 505

This info given here is subject to errors and do not form part of any contract. The offer can be changed or withdrawn without notice. Prices do not include purchase costs.

Calculate mortgages

Currency exchange

  • Pounds: 326.630 GBP
  • Russian ruble: 326.630 RUB
  • Swiss franc: 346.097 CHF
  • Chinese yuan: 3.023.584 CNY
  • Dollar: 444.566 USD
  • Swedish krona: 4.098.276 SEK
  • The Norwegian crown: 4.090.527 NOK

Details

89 m2 · 3 Bedrooms · 2 Bathrooms · Pool

Characteristics

Bedrooms: 3
Bathrooms: 2
Built: 89m2
Pool: Yes
Distance to beach: 300 Mts.
Number of Parking Spaces: 1
Near Schools
Near Bus Route
Location: Coastal, Urbanisation
Garden
Near Commercial Center
Double Bedrooms: 3
Under-Build / Basement
Useable Build Space: 75 Msq.
Beach: 300 Meters
Terrace: 33 Msq.
Space - Double Garage
Storage / Trastero
Elevator/Lift
Communal Pool
Gated
Energy Rating
Energy RatingC

Description

New Build Homes in Almuñécar, Costa Tropical – Just 300 Meters from the Beach Discover your new home by the sea in one of the most desirable areas of the Costa Tropical. This exclusive new development in Almuñécar offers modern living just 300 meters from the beach, with excellent amenities and a privileged coastal setting in the Velilla-Taramay area. A Variety of Homes to Suit Your Lifestyle The development consists of 54 homes with 2 and 3 bedrooms, each designed for comfort and functionality. Choose from a range of layouts, including: Ground floor apartments with spacious terraces Bright mid-floor apartments Stunning penthouses with large open-air terraces Charming terraced houses for family living All homes include private terraces, underground parking, and a storage room. Many units also offer partial or full sea views, allowing you to enjoy the beauty of the Mediterranean from your own home. Premium Features and Community Spaces Every property includes a fully furnished kitchen with appliances and ducted air conditioning already installed. The residential complex offers excellent communal areas, including: A large swimming pool Landscaped gardens Solarium area perfect for sunny days These amenities create the ideal environment to relax, entertain, or spend time with the family. Prime Location in Velilla-Taramay, Almuñécar Located in the vibrant coastal neighborhood of Velilla-Taramay, residents enjoy proximity to essential services including health centers, schools, supermarkets, sports facilities, parks, viewpoints, and a wide variety of restaurants known for their fresh seafood and Mediterranean cuisine. Distances to nearby points of interest: Beach – 300 meters Nerja – 25 km Granada Airport – 85 km Málaga Airport – 90 km Sierra Nevada Ski Resort – 110 km Marina del Este Port – 8 km Los Moriscos Golf Club – 20 km Live by the Sea All Year Round With direct pedestrian access to the beach and opportunities for activities such as sailing, paddle surfing, snorkeling, and diving, this development is perfect for those who love the sea and the outdoors. Its excellent road connections via the N-340 and the A-7 make it easy to reach any destination in Andalusia. Don't miss the opportunity to own a brand-new home on the Costa Tropical. Contact us today for more information or to schedule a visit. 505

Location

Economy

This info given here is subject to errors and do not form part of any contract. The offer can be changed or withdrawn without notice. Prices do not include purchase costs.

Calculate mortgages

Currency exchange

  • Pounds: 326.630 GBP
  • Russian ruble: 326.630 RUB
  • Swiss franc: 346.097 CHF
  • Chinese yuan: 3.023.584 CNY
  • Dollar: 444.566 USD
  • Swedish krona: 4.098.276 SEK
  • The Norwegian crown: 4.090.527 NOK

Ask for information

Responsable del tratamiento: , Finalidad del tratamiento: Gestión y control de los servicios ofrecidos a través de la página Web de Servicios inmobiliarios, Envío de información a traves de newsletter y otros, Legitimación: Por consentimiento, Destinatarios: No se cederan los datos, salvo para elaborar contabilidad, Derechos de las personas interesadas: Acceder, rectificar y suprimir los datos, solicitar la portabilidad de los mismos, oponerse altratamiento y solicitar la limitación de éste, Procedencia de los datos: El Propio interesado, Información Adicional: Puede consultarse la información adicional y detallada sobre protección de datos Aquí.
Contact Contact WhatsApp WhatsApp
WhatsApp Chat with us now